Arrenda-se T3 mobilado com Terraço e Box

1 100€ / Month

  • 4
  • 3
  • 2
  • Usable: 120m2
  • Floor: 170m2
  • C.E.: C
  • Year: 2008
  • Solar Orientation: East, West
  • Ref: 1533-MCPN60276

Location

Lisboa, Oeiras, Carnaxide e Queijas, Portela (Carnaxide)

Description

Arrenda-se T3 completamente mobilado com terraço e Box em Portela de Carnaxide.
Apartamento de 2008 em zona sossegada e nova e possui ar-condicionado, box para 1 carro, elevador e terraço com 50m2. Muito luminoso (tem 14 janelas), com orientação solar nascente-Poente.
A arrecadação não será incluída no aluguer.
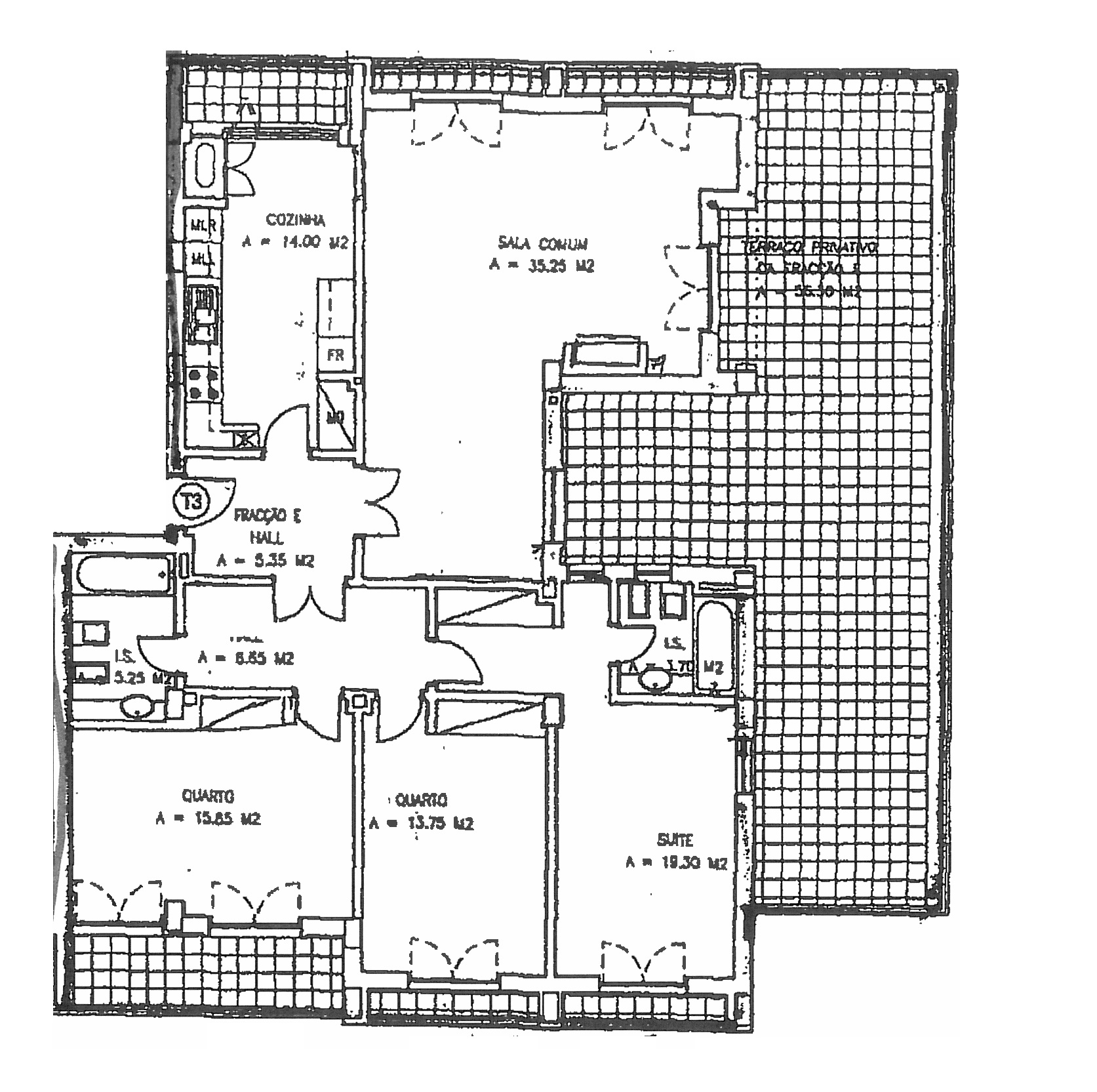
Áreas:
Sala - 35m2 // Cozinha - 14m2 // Suite - 19m2 // Quarto1 - 16m2 // Quarto2 - 14m2 // Terraço - 50m2 // Hall's - 11m2 // Wc's - 9m2 // Box - 15m2

Attributes

  • Heating
  • Double glazed windows
  • Furnished
  • Terrace
  • Air Conditioning
  • Equipped Kitchen
  • Elevator
  • Balcony
  • Garage (Box)
  • Electric blinds
  • Barbecue grill
  • Security Door

Divisions

Blueprints

Floor name: House Floor 0

Division Area Note
Room 35.00m2
Kitchen 14.00m2
Suite 19.00m2
WC 4.00m2
Bedroom 16.00m2
Bedroom 14.00m2
WC 5.00m2
Terrace 50.00m2
Entrance Hall 5.00m2
Bedroom Hall 6.00m2
Box 15.00m2